SIGN UP BEFORE END OF DECEMBER 25 AND EACH TENANT RECEIVES A £50 ASDA VOUCHER!!
Excellent recently refurbished house. VIRGIN FAST INTERNET!!! Dining Room and Kitchen have undergone recent refurbishment.
We have just a small portfolio of student properties in the Smithdown area. You will be treated like an individual, no waiting endless for repairs to be carried out by an agent or contractor or in the unfortunate case of an emergency, we will be there!!! House close to the Bus Stop, Brookhouse Pub, ASDA, local shops, bars & restaurants..
Our maintenance guys are local, so once again any problems are sorted out quickly.
Our rental prices are very competitive considering the decoration and furniture within them.
Property has its own Bar within the Dining Room area and a brick BBQ in the garden area.
House within walking distance of local ASDA superstore, wine bars and restaurants. Bus stop to City Centre 2 mins walk from property. Reduced rent for retainer period. Property must be inspected to display its full benefits. 4 large rooms £125.00 per week (Gas, Electric & Broadband included). Consideration will be given to couples whom wish to share a spacious double room at a reduced rent. Excellent value for money given the location and condition of the property!!! Half rent for July and August retainer period.
New Kitchen
Decking area in Garden
Rent:£125 Weeklet as whole only
Tenancy Fees Information
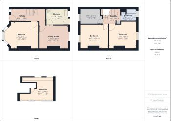
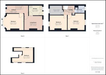
4 Bedrooms (4 Available)Available 01/07/2026Security Deposit:£150 Per Person (per year)
Advert Ref:LSHP8816826
No. of bedrooms available4
Available:
01/07/2026
£125FromPer person per week£125.00 PP/Per Week (price for comparison)
Click for a full range of prices
Summer ConcessionN/ASecurity Deposit:£150 Per Person (per year)
Tenancy Fees Information
Tenancy Deposit Scheme:Deposit Protection ServiceCouncil Tax Band:AGuarantor Required:YesContract Type:Fixed term joint contractAccept Guarantor Insurance:No
Rent Includes
ElectricityGasWaterInternetUtility Cap Applies
Example Contract:
Click to Download
| Description | Price | Frequency | Price for comparison (per day)* |
| DOUBLE BEDROOM | £125 | Per person per week | £17.86 |
* Prices per day are based on 365 days in a year. Whole property prices per day based on a single occupant / family unit
Property Details:
Property Type:
House
Area:
Smithdown (L15/L17)
Town:
Liverpool
Total number of bedrooms:
4
Heating:
Gas Central, Central Heating
wooohoo
Shared Facilities:
- Bicycle Storage
- Broadband Internet
- Dishwasher
- Double Glazing
- Garden
- Gym
- Lift
- Onsite Launderette
- Onsite Parking
- Television
- Tumble Dryer
- Washing Machine
Private Facilities:
- Double Bed
- En-Suite
- Locks on Bedroom Door
- Off Road Parking
- Television
Suitable For:
- Couples
- Disabled
- Family
- International Students
- Pets
- Postgraduates
- Short Term Stays
- Undergraduates
Sustainable Living:
- Compost Bin
- Double Glazed Windows
- Energy Efficient Boiler
- Energy Efficient Domestic Appliances
- Energy Efficient Light Bulbs
- Heating Timer and/or Programmer
- Insulation
- Internal Recycle Bin
- Low Flow Shower
- Renewable Energy for Electricity
- Renewable Energy for Heating
- Room Thermostat
- Smart Meter
- Solar Panels
Security:
- Advanced Standard
- Burglar Alarm
- Recommended Standard
- Window Restrictors
Other Facilities:
This house has recently been fitted with a new carpets and laminate floor. Property must be viewed to appreciate it!!!
Safety:
- 24/7 Staff
- Battery Smoke Detectors
- Carbon Monoxide Alarm
- Fire Blanket
- Fire Extinguisher
- Mains Smoke Detectors (Hard Wired)
Mobility
- Adapted Bathroom
- Adapted Kitchen
- Adapted Toilet
- Adjustable Kitchen Facilities
- Braille Information/Instructions
- Disabled Parking
- Door Entry System
- Emotional support animals/pets considered
- Ground Floor Bathroom
- Ground Floor Bathroom with Wheelchair Access
- Ground Floor Bedroom
- Ground Floor Bedroom with Wheelchair Access
- Ground Floor Toilet
- Ground Floor Toilet with Wheelchair Access
- Guide Dog Suitable
- Handrails External/Internal
- Hearing Loop
- Hearing/Visual Adaptations
- Level Access Throughout
- Level Entry Shower / Wet Room
- Mid Height Sockets / Switches
- Moveable Access Ramp
- No Difficult Outside Steps
- Permanent Access Ramp
- Shower / Wet Room
- Shower Over Bath
- Shower Seat
- Stair Lift
- Through Floor Lift
- Vibrating Fire Alarm Pillow
- Visual / Vibrating Fire Alarm
- Wheelchair Friendly Doors
Number of Facilities:
Bathrooms1
Fridge Freezers2
Kitchens1
Showers1
Toilets1
Washing Machines1
Electrical Certified
Electrical Certificate Expires14/08/2029
Gas Certificate
Gas Safety Certificate Expires06/10/2026
Property License
Property License Expires16/03/2028
| ENERGY EFFICIENCY RATING |
| |
Actual |
Poss |
(92+)A
(81-91)B
(69-80)C
(55-68)D
(39-54)E
(21-39)F
(1-20)G
|
70
|
88
|
| ENVIRONMENTAL IMPACT RATING |
| |
Actual |
Poss |
(92+)A
(81-91)B
(69-80)C
(55-68)D
(39-54)E
(21-38)F
(1-20)G
|
66
|
86
|
Please mention Liverpool Student Homes when booking