READY FOR 2026/27! LARGE 5 BED / 2 BATHROOM HOUSE - EDINBURGH ROAD - SHORT WALK TO CAMPUS!
We are pleased to present this PERFECT property located ideally for Liverpool City Centre and Universities. The house is situated in the incredibly popular Kensington which offers many amenities on your doorstep. With a direct bus route to the heart of the city centre, or a short walk to Campus, it makes it a perfect location for students.
Packed with large rooms, this property consists of a NEW kitchen complete with oven, hob and fridge freezer, dishwasher and breakfast bar ! Free laundry facilities are also provided in the form of a washer and dryer. There is a large living area with contemporary furnishings and TV.
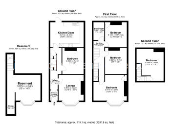
There are FIVE bedrooms in total spread over three floors. Rooms are fully furnished with DOUBLE BED, desks, chairs and wardrobes. The main bathroom includes a large walk-in shower, sink and WC. There is then a new separate shower room with shower, toilet and sink - featuring stunning wallpaper! Externally there is plenty of on-street parking available (permit required and available via Liverpool City Council) and a small rear yard - ideal for those Summer BBQs!
Viewings HIGHLY recommended for this ideally located property!
Utility bills included in the weekly price - gas, electric, water and broadband!
Rent:£120 Weeklet as whole only
Tenancy Fees Information
5 Bedrooms (5 Available)Available NowSecurity Deposit:£350 Per Person (per year)
Advert Ref:LSHP9987880
No. of bedrooms available5Contract Length (weeks):51
Available:
Now
£120FromPer person per week£120.00 PP/Per Week (price for comparison)
Click for a full range of prices
Summer ConcessionN/ASecurity Deposit:£350 Per Person (per year)
Tenancy Fees Information
Tenancy Deposit Scheme:My Deposits InsuredCouncil Tax Band:AGuarantor Required:NoContract Type:Fixed term joint contractAccept Guarantor Insurance:No
Rent Includes
ElectricityGasWaterInternetUncapped
| Description | Price | Frequency | Price for comparison (per day)* |
| £120 | Per person per week | £17.14 |
* Prices per day are based on 365 days in a year. Whole property prices per day based on a single occupant / family unit
Property Details:
Property Type:
House
Area:
Kensington Fields (L7)
Town:
Liverpool
Total number of bedrooms:
5
Heating:
Gas Central
wooohoo
Shared Facilities:
- Bicycle Storage
- Broadband Internet
- Dishwasher
- Double Glazing
- Garden
- Gym
- Lift
- Onsite Launderette
- Onsite Parking
- Television
- Tumble Dryer
- Washing Machine
Private Facilities:
- Double Bed
- En-Suite
- Locks on Bedroom Door
- Off Road Parking
- Television
Suitable For:
- Couples
- Disabled
- Family
- International Students
- Pets
- Postgraduates
- Short Term Stays
- Undergraduates
Sustainable Living:
- Compost Bin
- Double Glazed Windows
- Energy Efficient Boiler
- Energy Efficient Domestic Appliances
- Energy Efficient Light Bulbs
- Heating Timer and/or Programmer
- Insulation
- Internal Recycle Bin
- Low Flow Shower
- Renewable Energy for Electricity
- Renewable Energy for Heating
- Room Thermostat
- Smart Meter
- Solar Panels
Security:
- Advanced Standard
- Burglar Alarm
- Recommended Standard
- Window Restrictors
Safety:
- 24/7 Staff
- Battery Smoke Detectors
- Carbon Monoxide Alarm
- Fire Blanket
- Fire Extinguisher
- Mains Smoke Detectors (Hard Wired)
Mobility
- Adapted Bathroom
- Adapted Kitchen
- Adapted Toilet
- Adjustable Kitchen Facilities
- Braille Information/Instructions
- Disabled Parking
- Door Entry System
- Emotional support animals/pets considered
- Ground Floor Bathroom
- Ground Floor Bathroom with Wheelchair Access
- Ground Floor Bedroom
- Ground Floor Bedroom with Wheelchair Access
- Ground Floor Toilet
- Ground Floor Toilet with Wheelchair Access
- Guide Dog Suitable
- Handrails External/Internal
- Hearing Loop
- Hearing/Visual Adaptations
- Level Access Throughout
- Level Entry Shower / Wet Room
- Mid Height Sockets / Switches
- Moveable Access Ramp
- No Difficult Outside Steps
- Permanent Access Ramp
- Shower / Wet Room
- Shower Over Bath
- Shower Seat
- Stair Lift
- Through Floor Lift
- Vibrating Fire Alarm Pillow
- Visual / Vibrating Fire Alarm
- Wheelchair Friendly Doors
Number of Facilities:
Bathrooms2
Fridge Freezers1
Kitchens1
Showers2
Toilets2
Washing Machines1
Electrical Certified
Electrical Certificate Expires20/12/2027
Gas Certificate
Gas Safety Certificate Expires22/07/2026
Property License
Property License Expires09/10/2029
| ENERGY EFFICIENCY RATING |
| |
Actual |
Poss |
(92+)A
(81-91)B
(69-80)C
(55-68)D
(39-54)E
(21-39)F
(1-20)G
|
47
|
76
|
Please mention Liverpool Student Homes when booking
Unable to load Google Map
- Please ensure you have JavaScript installed and enabled, and that your internet browser is up to date.
- If you were prompted to block or allow content from other websites when entering this page, you need to select to allow the content. [ Reload this page ]
Note: Map pins show approximate property locations.
Travel Times
The asking rent may not include letting fees. Depending on your circumstances and the property you select there may be the following upfront fees:
- General administration fees
- Reference fees (including credit checks, bank, guarantor, previous landlord, etc.)
- Application fees
- Fees for drawing up tenancy agreements
- Inventory fees (including check in and check out fees)
- Guarantor arrangement / application fees
- Additional occupant fees
- Pets disclaimer fees / additional pet deposit
Fees may be charged on a per property, per person or per tenancy basis.