Homely 3 Bedroom house 5 minutes walk from University. Fully furnished and all bills included (200MB broadband,elec,gas,water,tv licence)
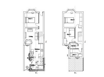
The house has 3 double bedrooms and a spare guest bedroom, 2 Bathrooms, Kitchen, Utility Room, Living room, 2nd Basement living room and a back yard.
The house has central heating to all rooms, dish washer, a washing machine, 2 fridge freezers and a microwave.
All bills are included (water, gas, electricity & internet. TV and licence are included)
Tenancies are for a 43 week duration for £93/week/person
Please get in touch if you'd like a viewing.
Rent:£83 Weeklet as whole only
Tenancy Fees Information
3 Bedrooms (3 Available)Available NowSecurity Deposit:£75 Per Person (per year)
Advert Ref:LSHP4184747
No. of bedrooms available3Contract Length (weeks):43 - 51
Available:
Now
£83FromPer person per week£83.00 PP/Per Week (price for comparison)
Click for a full range of prices
Summer ConcessionN/AHolding Deposit£75.00 -75.00Security Deposit:£75 Per Person (per year)
Tenancy Fees Information
Tenancy Deposit Scheme:Deposit Protection ServiceCouncil Tax Band:AContract Type:Fixed term joint contractAccept Guarantor Insurance:Yes
Rent Includes
ElectricityGasWaterInternetUtility Cap Applies
Description | Price | Frequency | Price for comparison (per day)* |
51 week contract | £83 | Per person per week | £11.86 |
43 week contract | £93 | Per person per week | £13.29 |
* Prices per day are based on 365 days in a year. Whole property prices per day based on a single occupant / family unit
Property Details:
Property Type:
House
Area:
Kensington Fields (L7)
Town:
Liverpool
Total number of bedrooms:
3
Heating:
Central Heating
wooohoo
Shared Facilities:
- Bicycle Storage
- Broadband Internet
- Dishwasher
- Double Glazing
- Garden
- Gym
- Lift
- Onsite Launderette
- Onsite Parking
- Television
- Tumble Dryer
- Washing Machine
Private Facilities:
- Double Bed
- En-Suite
- Locks on Bedroom Door
- Off Road Parking
- Television
Suitable For:
- Couples
- Disabled
- Family
- International Students
- Pets
- Postgraduates
- Short Term Stays
- Undergraduates
Sustainable Living:
- Compost Bin
- Double Glazed Windows
- Energy Efficient Boiler
- Energy Efficient Domestic Appliances
- Energy Efficient Light Bulbs
- Heating Timer and/or Programmer
- Insulation
- Internal Recycle Bin
- Low Flow Shower
- Renewable Energy for Electricity
- Renewable Energy for Heating
- Room Thermostat
- Smart Meter
- Solar Panels
Security:
- Advanced Standard
- Burglar Alarm
- Recommended Standard
- Window Restrictors
Safety:
- 24/7 Staff
- Battery Smoke Detectors
- Carbon Monoxide Alarm
- Fire Blanket
- Fire Extinguisher
- Mains Smoke Detectors (Hard Wired)
Mobility
- Adapted Bathroom
- Adapted Kitchen
- Adapted Toilet
- Adjustable Kitchen Facilities
- Braille Information/Instructions
- Disabled Parking
- Door Entry System
- Emotional support animals/pets considered
- Ground Floor Bathroom
- Ground Floor Bathroom with Wheelchair Access
- Ground Floor Bedroom
- Ground Floor Bedroom with Wheelchair Access
- Ground Floor Toilet
- Ground Floor Toilet with Wheelchair Access
- Guide Dog Suitable
- Handrails External/Internal
- Hearing Loop
- Hearing/Visual Adaptations
- Level Access Throughout
- Level Entry Shower / Wet Room
- Mid Height Sockets / Switches
- Moveable Access Ramp
- No Difficult Outside Steps
- Permanent Access Ramp
- Shower / Wet Room
- Shower Over Bath
- Shower Seat
- Stair Lift
- Through Floor Lift
- Vibrating Fire Alarm Pillow
- Visual / Vibrating Fire Alarm
- Wheelchair Friendly Doors
Number of Facilities:
Bathrooms2
En-Suite0
Fridge Freezers1
Kitchens1
Parking Spaces1
Showers2
Toilets2
Washing Machines1
Electrical Certified
Electrical Certificate Expires14/10/2030
Gas Certificate
Gas Safety Certificate Expires08/09/2026
Property License
Property License Expires21/05/2028
ENERGY EFFICIENCY RATING |
|
Actual |
Poss |
(92+)A
(81-91)B
(69-80)C
(55-68)D
(39-54)E
(21-39)F
(1-20)G
|
67
|
86
|
Agent/Landlord Details:
Agent/Landlord:Liverpoolpad
Contact:Liverpoolpad
Profile:I have personally been letting houses for over 10 years on the Liverpool Student Homes Website, and over 35 years as a family business.
We pride ourselves on providing good quality and safe accommodation at an excellent price. The best reference is to ask our existing tenants!
I am a RIBA ARB qualified architect (Carchitecture.co.uk) and am a member of the National Landlord's Association.
Click to show contact info
Please mention Liverpool Student Homes when booking