More Details and Updates
https://www.instagram.com/simkinscowellproperty?igsh=eDg4a2V5aGJwcjI3&utm_source=qr
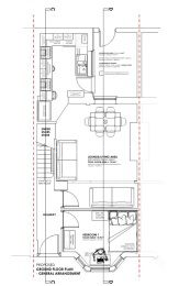
32 Cretan Rd is going to be a luxury 6 bed student house. We are currently in the middle of the build. The house will have 6 good sized bedrooms, 2 bathrooms and a large open plan kitchen/lounge.
*This property is currently under development. The developer has given an assurance to Liverpool Student Homes (LSH) that it will be completed and ready for occupation by the date stated, that it will be fully compliant with the LSH Standards and that the computer-generated images used will be a fair reflection of the finished product. In addition the developer has agreed to comply with the ‘Late Completion of Refurbishment and Development Protocol’ (Appendix 1 of the LSH Standards - https://www.liverpoolstudenthomes.org/DocumentStorage/LSH%20Standards.pdf ). You should therefore be provided with adequate warnings of any delays in the completion of a refurbishment or new build. However, LSH recommends that any student entering into a tenancy agreement should still obtain their own assurances and request regular updates on the progress of the construction. *
Rent:£135 Weeklet as whole only
Tenancy Fees Information
6 Bedrooms (6 Available)Available NowSecurity Deposit:£150 Per Person (per year)
Advert Ref:LSHP10244820
No. of bedrooms available6Contract Length (weeks):52
Available:
Now
£135FromPer person per week£135.00 PP/Per Week (price for comparison)
Click for a full range of prices
Summer ConcessionN/AHolding Deposit£30.00 -30.00Security Deposit:£150 Per Person (per year)
Tenancy Fees Information
Tenancy Deposit Scheme:N/AGuarantor Required:NoContract Type:Fixed term joint contractAccept Guarantor Insurance:Yes
Rent Includes
ElectricityGasWaterInternetUncapped
| Description | Price | Frequency | Price for comparison (per day)* |
| £135 | Per person per week | £19.29 |
* Prices per day are based on 365 days in a year. Whole property prices per day based on a single occupant / family unit
Property Details:
Property Type:
House
Area:
Smithdown (L15/L17)
Town:
Liverpool
Total number of bedrooms:
6
Heating:
Gas Central
wooohoo
Shared Facilities:
- Bicycle Storage
- Broadband Internet
- Dishwasher
- Double Glazing
- Garden
- Gym
- Lift
- Onsite Launderette
- Onsite Parking
- Television
- Tumble Dryer
- Washing Machine
Private Facilities:
- Double Bed
- En-Suite
- Locks on Bedroom Door
- Off Road Parking
- Television
Suitable For:
- Couples
- Disabled
- Family
- International Students
- Pets
- Postgraduates
- Short Term Stays
- Undergraduates
Sustainable Living:
- Compost Bin
- Double Glazed Windows
- Energy Efficient Boiler
- Energy Efficient Domestic Appliances
- Energy Efficient Light Bulbs
- Heating Timer and/or Programmer
- Insulation
- Internal Recycle Bin
- Low Flow Shower
- Renewable Energy for Electricity
- Renewable Energy for Heating
- Room Thermostat
- Smart Meter
- Solar Panels
Security:
- Advanced Standard
- Burglar Alarm
- Recommended Standard
- Window Restrictors
Safety:
- 24/7 Staff
- Battery Smoke Detectors
- Carbon Monoxide Alarm
- Fire Blanket
- Fire Extinguisher
- Mains Smoke Detectors (Hard Wired)
Mobility
- Adapted Bathroom
- Adapted Kitchen
- Adapted Toilet
- Adjustable Kitchen Facilities
- Braille Information/Instructions
- Disabled Parking
- Door Entry System
- Emotional support animals/pets considered
- Ground Floor Bathroom
- Ground Floor Bathroom with Wheelchair Access
- Ground Floor Bedroom
- Ground Floor Bedroom with Wheelchair Access
- Ground Floor Toilet
- Ground Floor Toilet with Wheelchair Access
- Guide Dog Suitable
- Handrails External/Internal
- Hearing Loop
- Hearing/Visual Adaptations
- Level Access Throughout
- Level Entry Shower / Wet Room
- Mid Height Sockets / Switches
- Moveable Access Ramp
- No Difficult Outside Steps
- Permanent Access Ramp
- Shower / Wet Room
- Shower Over Bath
- Shower Seat
- Stair Lift
- Through Floor Lift
- Vibrating Fire Alarm Pillow
- Visual / Vibrating Fire Alarm
- Wheelchair Friendly Doors
Number of Facilities:
Bathrooms2
Fridge Freezers1
Kitchens1
Showers2
Toilets2
Washing Machines1
Electrical Certified
Electrical Certificate ExpiresN/A
Gas Certificate
Gas Safety Certificate ExpiresN/A
Under the Energy Performance of Buildings Regulations 2012 the owner of this property is not required to obtain an Energy Performance Certificate as the rooms are let individually on separate contracts.
Please mention Liverpool Student Homes when booking
Unable to load Google Map
- Please ensure you have JavaScript installed and enabled, and that your internet browser is up to date.
- If you were prompted to block or allow content from other websites when entering this page, you need to select to allow the content. [ Reload this page ]
Note: Map pins show approximate property locations.
Travel Times
The asking rent may not include letting fees. Depending on your circumstances and the property you select there may be the following upfront fees:
- General administration fees
- Reference fees (including credit checks, bank, guarantor, previous landlord, etc.)
- Application fees
- Fees for drawing up tenancy agreements
- Inventory fees (including check in and check out fees)
- Guarantor arrangement / application fees
- Additional occupant fees
- Pets disclaimer fees / additional pet deposit
Fees may be charged on a per property, per person or per tenancy basis.