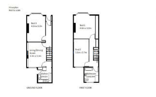
Available from June this is a very spacious 2 bedroom, 2 reception room home in great location, just a short walk from the Univeristy of Liverpool main campus. Situated in the popular Kensington Fields conservation zone, this property has 2 newly refurbished first floor double bedrooms complete with new carpets, double beds, wardrobes, study desk and chairs. Also on the first floor is a large bathroom with bath and cascade shower over, toilet, hand basin and airing cupboard. On the ground floor is a well equipped kitchen with electrical appliances including electric oven with gas hob, microwave oven, kettle, toaster, a large fridge freezer and washing machine. There is a dining room off the kitchen table and chairs for 4, a 3 seater sofa and TV. There is also a separate living room with 2 seater sofa and additional sofabed which can be used as an occasional guest bedroom. The house has Virgin full fibre broadband and all bills are included in the rent. Resident only parking is readily available on road in front of the house.
Rent:£535 Monthindividuals and groups
Tenancy Fees Information
2 Bedrooms (2 Available)Available 01/06/2026Security Deposit:£250 Per Person (per year)
Advert Ref:LSHP53845
No. of bedrooms available2Contract Length (weeks):52
Available:
01/06/2026
£535FromPer person per month£123.46 PP/Per Week (price for comparison)
Click for a full range of prices
Summer ConcessionHalf RentSecurity Deposit:£250 Per Person (per year)
Tenancy Fees Information
Tenancy Deposit Scheme:Tenancy Deposit SchemeCouncil Tax Band:AGuarantor Required:NoContract Type:Fixed term individual contractAccept Guarantor Insurance:Yes
Rent Includes
ElectricityGasWaterInternetUncapped
| Description | Price | Frequency | Price for comparison (per day)* |
| First floor queen size double bedroom | £535 | Per person per month | £17.59 |
| First floor large double bedroom | £565 | Per person per month | £18.58 |
* Prices per day are based on 365 days in a year. Whole property prices per day based on a single occupant / family unit
Property Details:
Property Type:
House
Area:
Kensington Fields (L7)
Town:
N/A
Total number of bedrooms:
2
Heating:
Gas Central, Central Heating
wooohoo
Shared Facilities:
- Bicycle Storage
- Broadband Internet
- Dishwasher
- Double Glazing
- Garden
- Gym
- Lift
- Onsite Launderette
- Onsite Parking
- Television
- Tumble Dryer
- Washing Machine
Private Facilities:
- Double Bed
- En-Suite
- Locks on Bedroom Door
- Off Road Parking
- Television
Suitable For:
- Couples
- Disabled
- Family
- International Students
- Pets
- Postgraduates
- Short Term Stays
- Undergraduates
Sustainable Living:
- Compost Bin
- Double Glazed Windows
- Energy Efficient Boiler
- Energy Efficient Domestic Appliances
- Energy Efficient Light Bulbs
- Heating Timer and/or Programmer
- Insulation
- Internal Recycle Bin
- Low Flow Shower
- Renewable Energy for Electricity
- Renewable Energy for Heating
- Room Thermostat
- Smart Meter
- Solar Panels
Security:
- Advanced Standard
- Burglar Alarm
- Recommended Standard
- Window Restrictors
Other Facilities:
Small paved terraced garden. Dry cellar suitable for storage.
Safety:
- 24/7 Staff
- Battery Smoke Detectors
- Carbon Monoxide Alarm
- Fire Blanket
- Fire Extinguisher
- Mains Smoke Detectors (Hard Wired)
Mobility
- Adapted Bathroom
- Adapted Kitchen
- Adapted Toilet
- Adjustable Kitchen Facilities
- Braille Information/Instructions
- Disabled Parking
- Door Entry System
- Emotional support animals/pets considered
- Ground Floor Bathroom
- Ground Floor Bathroom with Wheelchair Access
- Ground Floor Bedroom
- Ground Floor Bedroom with Wheelchair Access
- Ground Floor Toilet
- Ground Floor Toilet with Wheelchair Access
- Guide Dog Suitable
- Handrails External/Internal
- Hearing Loop
- Hearing/Visual Adaptations
- Level Access Throughout
- Level Entry Shower / Wet Room
- Mid Height Sockets / Switches
- Moveable Access Ramp
- No Difficult Outside Steps
- Permanent Access Ramp
- Shower / Wet Room
- Shower Over Bath
- Shower Seat
- Stair Lift
- Through Floor Lift
- Vibrating Fire Alarm Pillow
- Visual / Vibrating Fire Alarm
- Wheelchair Friendly Doors
Number of Facilities:
Bathrooms1
Fridge Freezers1
Kitchens1
Showers1
Toilets1
Washing Machines1
Electrical Certified
Electrical Certificate Expires01/10/2026
Gas Certificate
Gas Safety Certificate Expires12/08/2026
Property License
Property License Expires13/12/2028
Under the Energy Performance of Buildings Regulations 2012 the owner of this property is not required to obtain an Energy Performance Certificate as the rooms are let individually on separate contracts.
Please mention Liverpool Student Homes when booking